設計師:陳盈贏(鼓樓旗艦店 主任設計師)
戶型詳情:錦繡濱江花園150平米 現代簡約風格
案例說明
現代人生活緊張,而工作的繁忙又無法提供太多度假的機會,則這種情況下,若能將每日必回的家,營造出一種浪漫、溫馨的風情,實在是在好不過的方法。基于上述考慮,設計師特別塑造了這樣一個機能與休閑并重的居家空間,以舒緩業主的生活步調,體貼而富人性客廳,強烈的視覺語言,是設計師對空間的獨特詮釋,藝術性的造型及對比的色彩效果,營造出一個視覺豐富的空間世界。另一方面,不同性質的建材與家具,塑造了業主不凡的品位與形象。 藝術造型的木線條,為空間諸注入一種脫俗的氣質。不同的材料與造型獨特的家具的巧意搭配營造出主人出眾的品位。整體規劃中加入了獨特的線條表情,使空間平添一份人性的感覺。嚴厲的色彩,突出于素色的結構背景之外,掌握了視覺上瞬間的情緒轉折,并因此成為空間的主角。
優缺點分析
優點:
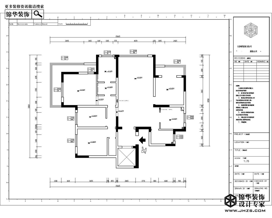
1.墻體可改動性大,塑造空間大。餐、廚相連,就餐、使用方便。
缺點:
1.動線混亂,房間功能定位不明確。
2.儲藏空間混亂。
3.主衛面積過大,浪費空間。
原始結構圖↓
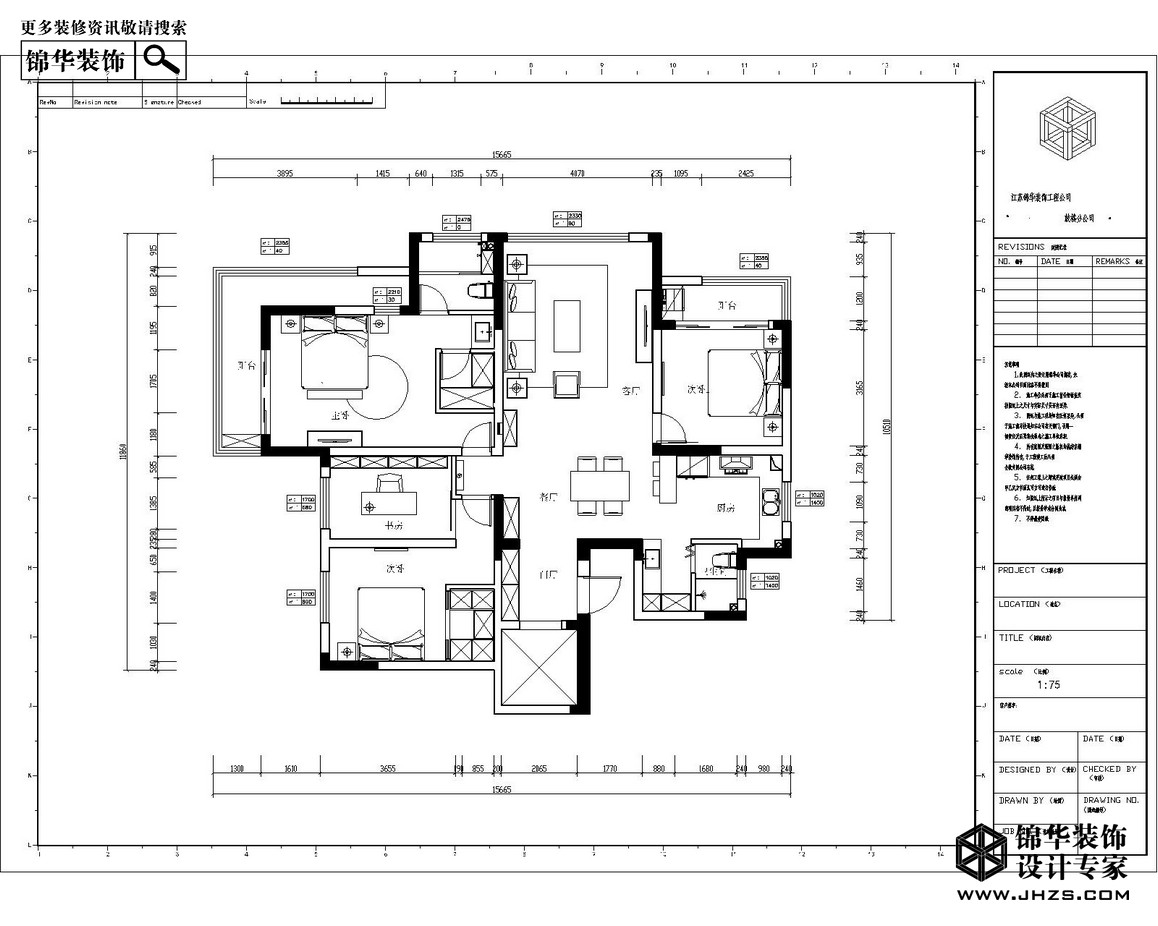
平面布置圖↓
鳥瞰圖↓
俯視圖↓
客戶效果圖↓
客戶效果圖↓
客戶效果圖↓
想了解更多錦繡濱江花園戶型資料么?
錦華裝飾準備了錦繡濱江花園各戶型全套設計方案、工程量報價、參考效果圖、主材搭配方案.歡迎您和網絡客服取得聯系,預約來店面詳細溝通.錦華裝飾,設計專家!.
江蘇家裝示范品牌
代表地區優秀設計聲音
集25年工程管理經驗之大成
省時、省力更省心
| 走進錦華 | 設計團隊 | 作品列表 | 戶型解析 | 裝修百科 |
關注錦華公眾號
|
瀏覽手機官網 |
全國熱線 025 86550815 |
||||||||||
| 新聞列表 | 錦華文化 | 堂杰國際設計 | 1865旗艦店 | 極簡 | 中古 | 秦淮金茂府 | 常見問題 | ||||||||||
| 全國分公司 | 錦華招聘 | 河西旗艦店 | 鼓北旗艦店 | 法式 | |||||||||||||
| 錦華簡介 | 聯系我們 | 城東旗艦店 | 江寧旗艦店 | 歐式古典 | 北歐 | 中交錦方 | |||||||||||
| 資質榮譽 | 法律聲明 | 江北旗艦店 | 江浦店 | 美式田園 | 新古典 | 溧水玖宸府 | |||||||||||